

Layouts
Map

3D-designed




















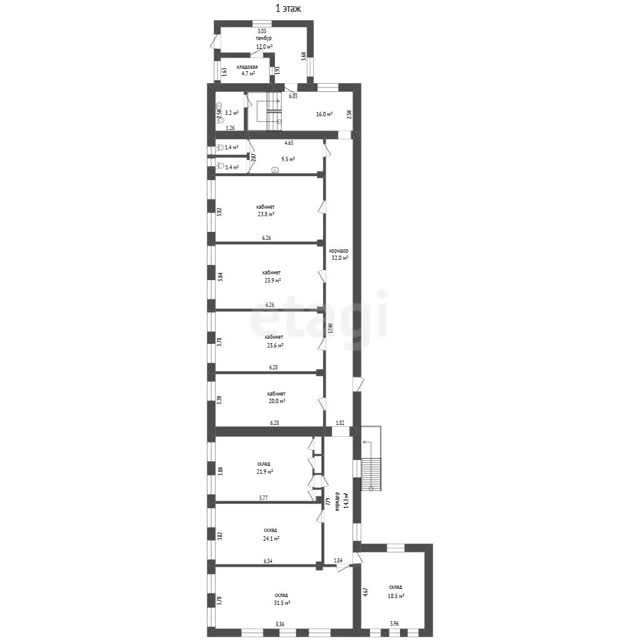
Office, 534.1m²
location Pervomayskiy, str. Tverdyy 1-y per
On map
1 740 632 BYN
3 259 BYN/m²
Property Details
- Object code12169158
- Number of entrances1
- Electric power5 kW
- Ceiling height2.5 m
- lesseeNo
Real estate specialist
- Main
- Commercial property
- Offices
- Pervomayskiy
- Tverdyy 1-y per
- Object code 12169158
